• Brooklyn roof deck and view of NYC.
  • Brooklyn roof deck view analysis.
  • Brooklyn roof deck view analysis.
  • Brooklyn roof deck shade analysis.
  • Brooklyn roof deck structural analysis.
  • Brooklyn roof deck walkway analysis.
  • Brooklyn roof deck plan.
  • Brooklyn roof deck isometric diagram.

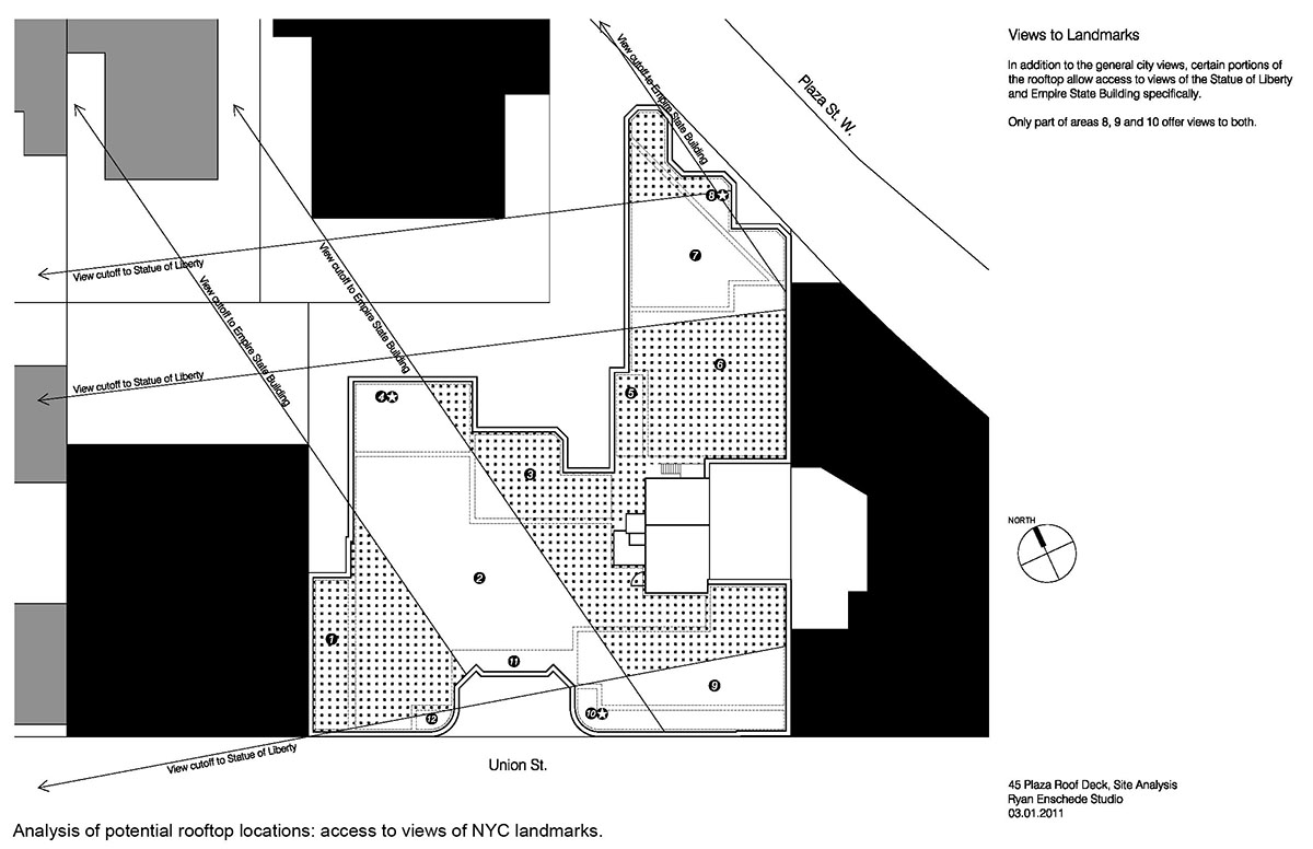
City Roof Deck

I have been working with the owners of a cooperative apartment building in Park Slope on a modest problem: to create a new roof deck to replace a previous one destroyed by fire. The challenge has been how to choose from an abundance of riches: there are unique and splendid views of different parts of the city in all directions, monumentally framed by taller neighboring buildings from varying parts of the rooftop, each with its own experience and feel. However the budget demanded that we limit ourselves to a single spot. To aid this decision, detailed qualitative and quantitative analyses were diagrammed and discussed. The chosen location maximized views and most efficiently utilized the substantial cost of the new steel substructure. It also exploited an opportunity to transform the existing service stair into a dramatic series of spaces unfolding up and out from within the building to arrive at breath-taking views over Victorian Brownstone Brooklyn to the Statue of Liberty and the harbor, making this modest roof deck into a viewing platform, a sundeck, and a place to leave the street behind and reconnect with the sun, wind, and sky.